方案展示
設計說明
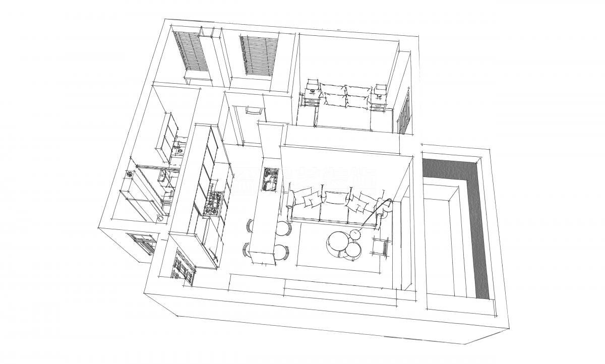
本項目是30年的舊宅改造,業主是一對90后夫妻,從他們的生活方式入手展開設計,打破原有戶型格局,開放式廚房,島臺餐桌,鞋柜電視柜融為一體的收納墻。原水泥墻面的再處理,在保留部分老宅的余溫的同時,注入新的生命力。
[展開]-
星藝設計師的其它設計案例
-
現代風格的其它設計案例
關注我們
分享到
微信

立即預約
在線咨詢
在線客服
公安部備案號 44010602004978號