星藝裝飾案例| 280㎡復式公寓,空間旋律融合極簡主義,光影下的新古典世界!
2021-08-01 12:00:00
設計理念
本案坐落于廣州珠江岸邊,視野開拓,清風徐徐,站在一覽無余的落地玻璃窗邊,讓人有一種一覽眾山小的感受,色調上的遞進感把空間的層次一步步推向縱深,讓空間處處有形且融于整體,色調和且不張揚,給現在的年輕人一種避世的歸屬感,找到屬于自己獨立且靜謐的空間。
主案設計丨帥伯尤(設計總監)
項目名稱丨《空間?旋律》
項目面積丨280㎡
風格傾向丨現代
案例地址丨中信君庭
一樓平面布置圖
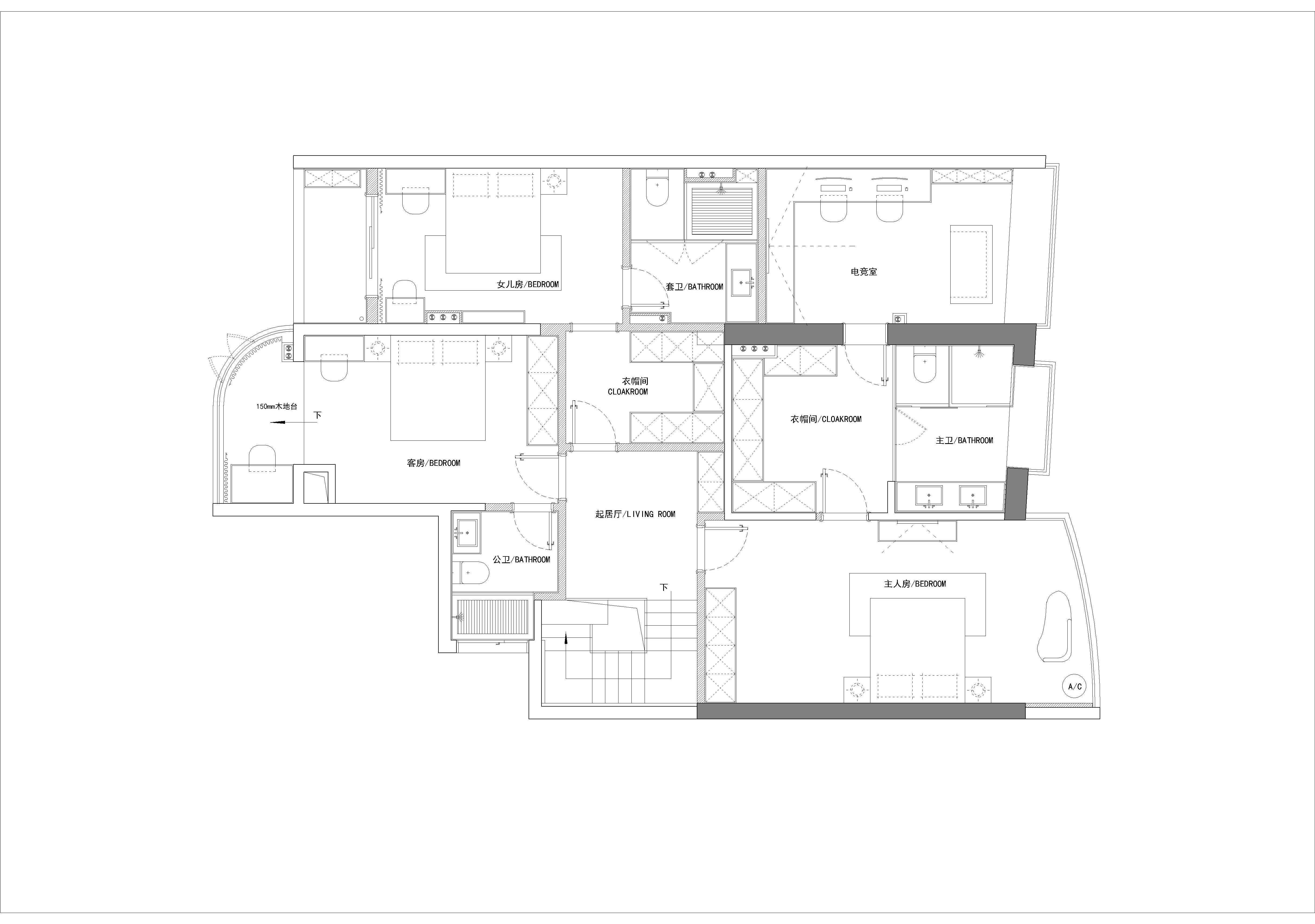
二樓平面布置圖
客廳首先就給人一種清幽的意境,黑色的皮質沙發,搭配上拼接的黑白圓桌和深褐色的格子地毯,吊燈也沒有用復雜的水晶燈,而是是簡約又設計感的圓管白燈,合理的空間分配平衡了厚重天花板帶來的壓迫感,把黑白灰的高級感發揮到了極致。
客廳中還有一大亮點就是黑白相間的旋轉樓梯了,對于復式公寓來說旋轉樓梯極大的起到了裝飾的作用,彰顯時代氣息,而且總的占地面積也比較小,提高了空間的利用率,放上照片和擺件極具藝術感染力。

用餐區也是用經典的黑白搭配,圓形的設計感吊燈提升了整個區域的精致度,而長長的大理石餐桌和磨砂皮質的座椅,不管是朋友聚會,還是吃一頓浪漫的燭光晚餐都非常合適。
最讓人驚艷的還有無處不在的“相思豆”,它代表著愛情,婚姻,幸福,平安,古代常用來代表相思之情,是情侶間定情的信物,是朋友間深長的情感連接,也寄托著人們對美好生活的向往。
主臥主要打造一種平和靜謐獨立空間,利用極佳的地理優勢,在站在落地窗前每天都能看到不一樣的珠江風景,視野開闊。床頭上坊還有玻璃碎片拼圖,不需要太多的裝飾,房間也不會顯得空落落的。
次室也是黑白灰的主場,白色墻面用黑色線條勾勒,和黑白灰相間的地毯相呼應,墻上的掛畫也都用層疊的矩形圖片,看似重疊卻又不顯得凌亂。
另外單獨設計了浴缸,同樣是黑白搭配,但是兩邊用白色瓷磚讓整體空間都拉大了,窗邊放上一束花,下班回家舒舒服服得泡個熱水澡,這就是簡單的幸福吧。
廚房部分是最能體現空間感的地方,白色的大理石臺面搭配灰色的收納櫥柜,簡約而不失高級感,透明的移動玻璃門和黑邊的修飾都很好的協調了大面積灰色帶來的沉悶感。
錯落的光影,藏在每一處的小細節,設計師都在用情感打造這個“小世界”,小角落里的鮮艷的文心花增添活潑感,就像是穿著小裙子的女孩在翩翩起舞,讓你每天都能快樂無憂。
關注我們
在線客服
公安部備案號 44010602004978號